This page provides all the information about in-wall mounting of HomeCockpit Touchpanels.

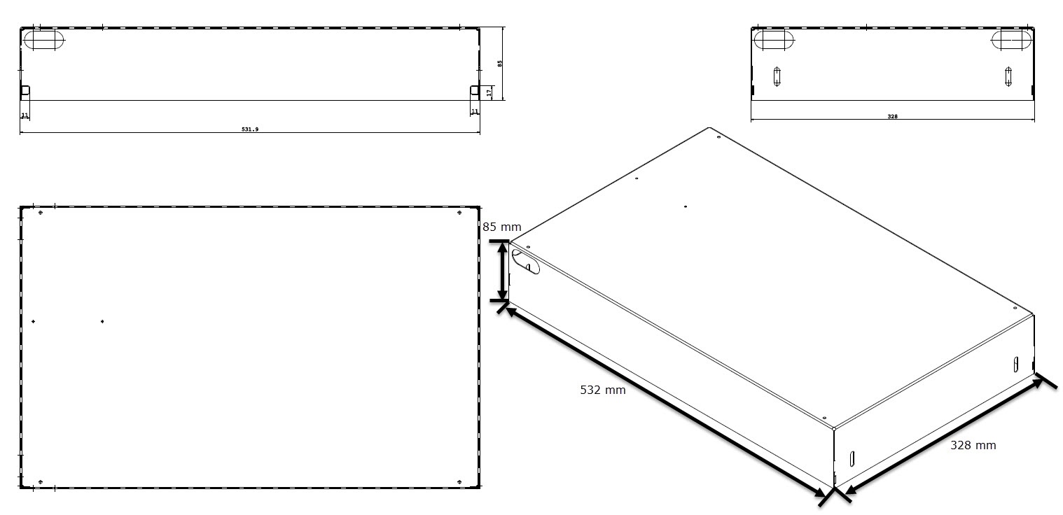
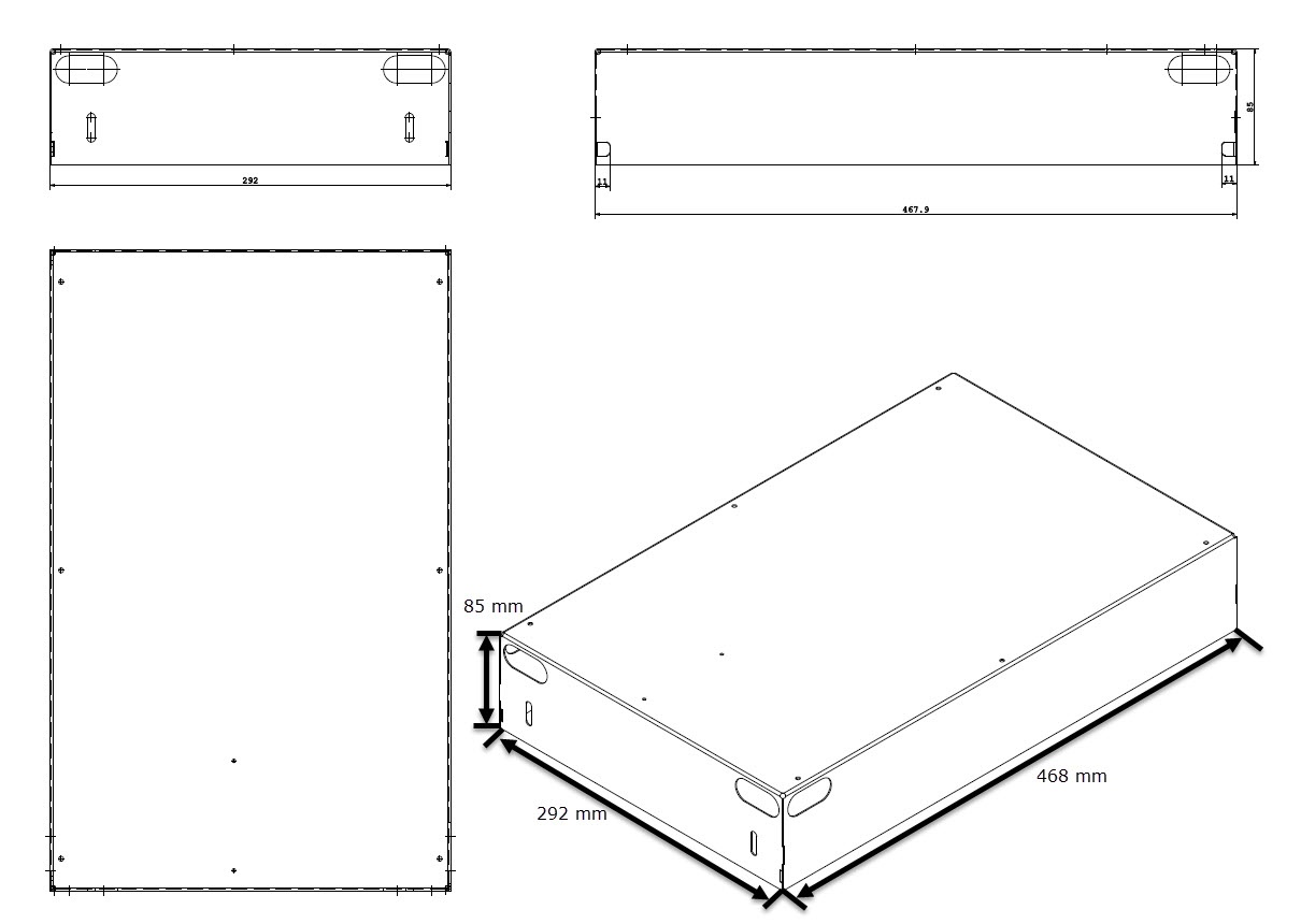
Choose the right Wallbox

Every size of our touchpanels needs it's own size of wallbox. Wallbox sizes are not linked to performance options. Therefore we offer four different sizes of wallboxes:

10,4"



(Click to expand)

15"



(Click to expand)




18,5"



(Click to expand)

21,5"



(Click to expand)




Correctly mount the wallbox in the wall

  • The top edge of the wallbox should be located at 165cm from the ground
  • Depending on the wallbox's size, sketch the outline of the wallbox onto the wall and excavate a cuboid with a depth of ~9cm using a hammer drill


  • Do not worry about removing too much material from the wall since it will be filled with mortar anyway
  • Also remember to create a groove big enough to fit tubing for the wireing (groove should be located towards the bottom left corner of the wallbox)
  • Dampen the backside of the cut out cuboid and apply mortar generously


  • Afterwards, push the wallbox into the hole and align it properly using a spirit level
  • If you chose the flush-mounted option for the wallbox, make sure to align it's edges with the plaster surface

 

  • IMPORTANT: After drying the mortar there is no further chance to align the wallbox




Flush-Mount frame

  • When mounting a flush-mount frame please keep in mind to exactly align it.
  • The frame also forms the plastered edge of the wall. This is the only way to guarantee that the frame is perfectly flush with the wall.

  • The frame is mounted directly to the Wallbox using four screws. The frame's edge should be perfectly aligned with the plaster.
  • Please note that theres no possible way of aligning the touchpanel inside the wallbox. Make sure to align the wallbox properly.


  



Flush-Mount fram measurements

10,4"



(Click to expand)

15"



(Click to expand)

18,5"



(Click to expand)

21,5"



(Click to expand)




Installing a Touchpanel in a Wallbox

  • Take the mounting frame off of the touchpanel
  • Mount the frame to the wallbox and align it using the 4 holes
  • Hang in the touchpanel using the upper mounting rail first
  • After that slide the lower mounting rail in and push the panel into the wallbox
  • For cleaning purposes, pull out the touchpanel
  • No labels